No i ładnie No i ładnie

Czerwona cegła w salonie

image
Zaprojektowane przez:
Aneta Nowakowska
Właściciel wnętrza
Sabina Sz
image
tag
tag
image2
image3
image4
image5
image1
image2
image3
image4
image5

Przesuń suwak i zobacz jak zmieniło się wnętrze

before after


Przed
image
image
image
Po
image
image
image

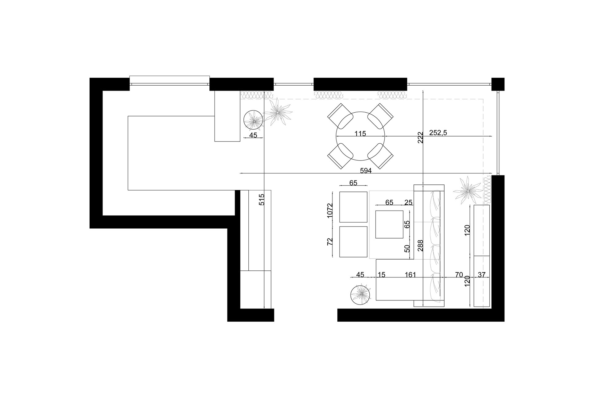
Styl industrialny wciąż zyskuje na popularności, ponieważ łączy w sobie wiele klasycznych i prostych elementów. Drewniane bryły, metalowe dodatki, brak zdobień i mocnych barw pozwalają na mocniejsze akcenty w dodatkach. Na przedstawionym projekcie łączymy dwie strefy - wypoczynku oraz jadalnianą.

Strefa wypoczynku to duży narożnik, ustawiony naprzeciwko kominka oraz telewizora, stolik kawowy oraz wygodne pufy. Narożnik posiada pojemny pojemnik na pościel i funkcję spania, idealną podczas wizyty gości. W rogu salonu ustawione zostały przeszklone witrynki na zastawy stołowe i porcelanę. Nie rzucają się w oczy, a jednocześnie stoją blisko strefy jadalnianej. Okrągły, drewniany stół idealnie pasuje do czerwonej cegły na ścianie. Krzesła GELLA to wzornictwo idealne do nowoczesnego wnętrza. Wszystkie użyte dodatki są w jasnych odcieniach, beżowe zasłony, białe ramki i wazony tworzą świetne dopełnienie loftowego stylu.


image
Więcej realizacji tego samego projektanta
Daria
Salon i jadalnia w minimalistycznym wydaniu. Duży stół i narożnik sprzyjać będą spotkaniom w gronie bliskich.
Ola1243
To połączenie kolorystyczne z pewnością przypadnie do gustu każdej małej księżniczce.
2xM&K
Pomysł na to jak zaaranżować pokój dla 7-latki, który będzie rósł razem z nią.
falubaz_fan
Jak wykorzystać każdy m2 i sprytnie zaaranżować przestrzeń dla nastolatka.
Realizacje z kategorii #salon
Anastazja
Kompleksowa przemiana pokoju dziennego, który stanowi połączenie salonu i jadalni. Niegdyś mało doświetlone pomieszczenie, stanowi teraz funkcjonalną oraz komfortową strefę. Krzesła welurowe LIANA dodają przestrzeni szykownego charakteru, a wygodna 3-osobowa sofa GENF, oferuje dodatkowe miejsce do siedzenia.
halinam
Metamorfoza pokoju starszych osób. Ważny element pomieszczenia stanowi wygodna kanapa, która umożliwi komfortowy wypoczynek oraz przyjmowanie gości. Meble z kolekcji SAINT TROPEZ, z jasnymi, błyszczącymi frontami, dodają nowoczesności oraz rozświetlają przestrzeń.
AleksandraPl
Pokój dla dwóch licealistek. Na ścianach znalazły się dekoracyjne panele, które idealnie dostrajają wnętrze. Przestrzeń została wyposażona w niezbędne wyposażenie, które zapewni komfort i wygodę nastolatkom.
Justi
Salon wraz z miejscem na jadalnie, jest centralnym punktem dla całego domu, a zatem musi dawać poczucie miejsca, w którym spędzanie czasu to czysta przyjemność! Aranżacja pomieszczenia, zachowana w jasnych barwach, z drewnianymi elementami to przytulna przystań do relaksu czy spotkań z najbliższymi.
Inne realizacje
Dorotaw
Metamorfoza obejmująca pomieszczenie, które pełni funkcję kuchni. Kuchnia zyskała sporo nowej przestrzeni do przechowywania, dzięki funkcjonalnym blatom oraz szafkom.
Ewson
Pomieszczenie to połączenie stylu nowoczesnego z akcentami elegancji. Taki akcent stanowi między innymi łóżko FABRIZZO SQUERE P, które dzięki pikowanemu zagłówkowi, jest wygodne oraz subtelne. Ryflowane szafki nocne TOMIE w ciemnym kolorze, dodają stylowego charakteru. Sypialnia zachowana w jasnych barwach, dzięki czemu jest świeża i przejrzysta dla oka.
Krzemi
Elegancka sypialnia, która stanowi połączenie komfortowego miejsca wypoczynku oraz przestrzeni do pracy. Modne łóżko CELINE z wygodnym, pikowanym zagłówkiem stanowi centralny element sypialni. Pojemna szafa BASTIA, z dużym lustrem, to pojemny mebel, który pomieści wiele dużą część garderoby.
Grzegorz
Pokój dla 13-latki w minimalistycznym stylu, zachowany w jasnych barwach. Meble z kolekcji FEMII w kolorze białym alpejskim, sprawią, że wnętrze zyskuje lekkości i świeżości.

W celu dostosowania strony do Twoich preferencji oraz zainteresowań przechowujemy na urządzeniu, z którego korzystasz (komputerze, telefonie itp.) tzw. „pliki cookies” i im podobne, z możliwością ich odczytu. Klikając „ Akceptuje” lub zamykając okno przy pomocy przycisku „X” wyrażasz zgodę na przetwarzanie Twoich danych. Pamiętaj, możesz w każdej chwili nie wyrazić zgody lub cofnąć zgodę na przetwarzanie Twoich danych osobowych.

Ponadto informujemy, że administratorem danych zawartych w tych plikach jest Agata S.A. Dane mogą być przetwarzane przez nas i naszych zaufanych partnerów w celach marketingowych, w szczególności poprzez wyświetlanie spersonalizowanych reklam, na podstawie naszego prawnie uzasadnionego interesu Więcej informacji na temat zasad przetwarzania danych osobowych, w tym o Twoich uprawnieniach, znajdziesz w naszej Polityce Prywatności.