No i ładnie No i ładnie

Funkcjonalna sypialnia w małej przestrzeni

image
Zaprojektowane przez:
Karolina Kubica
Właściciel wnętrza
Kajtaz
dodano: 26.01.2022
image
tag
tag
tag
tag
tag
tag
tag
tag
image2
image3
image4
image1
image2
image3
image4

Przesuń suwak i zobacz jak zmieniło się wnętrze

before after


Przed
image
image
Po
image
image

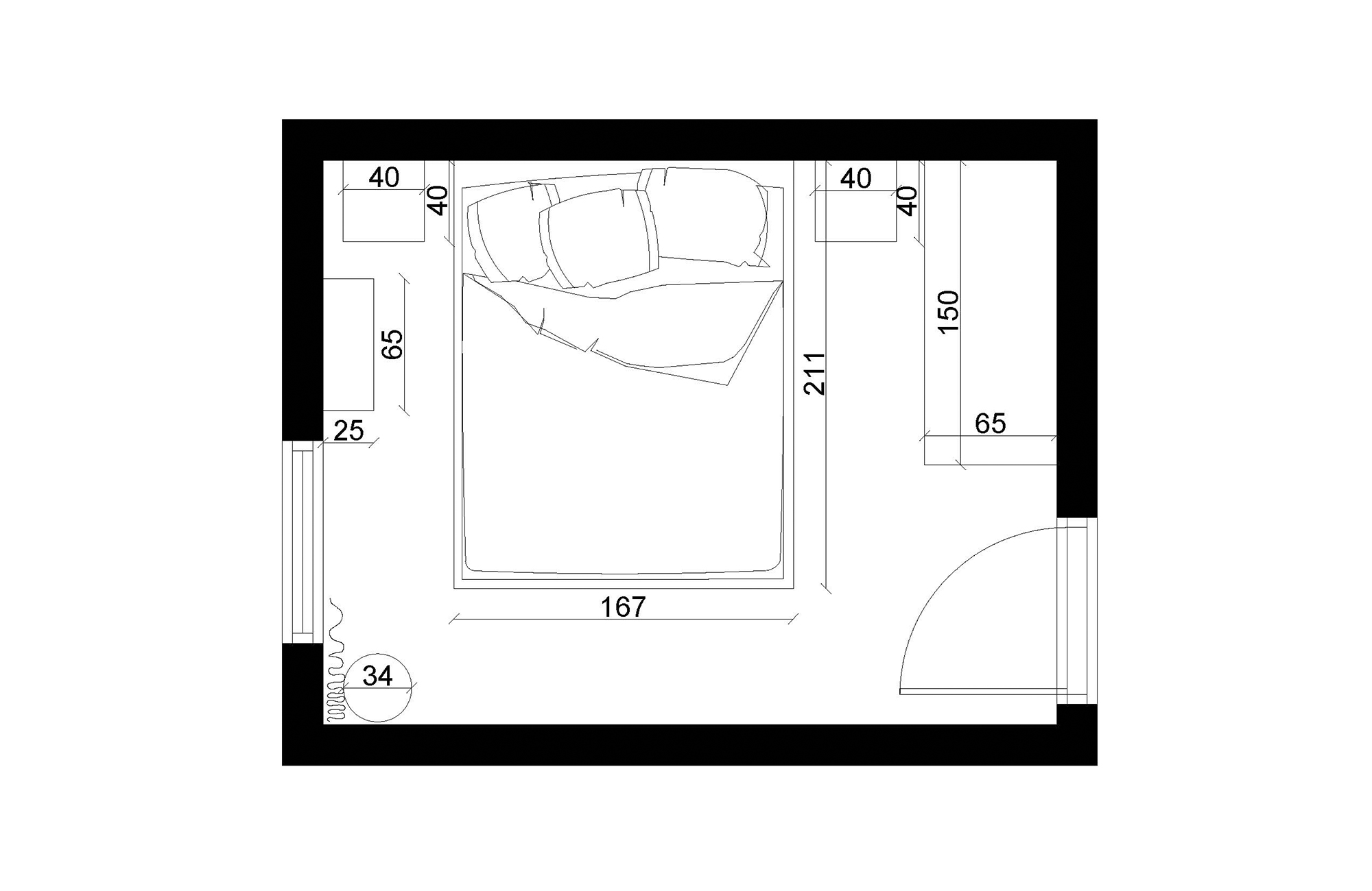
Niewielka sypialnia w której zgodnie z życzeniem właścicieli udało się znaleźć miejsce na łóżko dwuosobowe, dużą szafę oraz regał na książki. Wnętrze utrzymane w jasnych kolorach z akcentami drewna oraz koloru granatowego. Na środku stanęło wygodne, tapicerowane łóżko LIMAND FUNDAMENTO w kolorze szarym z ozdobym zagłówkiem. Po bokach znalazły się szafki nocne ZONA z miejscem do przechowywania. Na jednej ze ścian zawieszono półki na książki TRIO w wykończeniu drewnianym, natomiast po drugiej stronie stanęła pojemna szafa BASTIA z frontem wykończonym lustrem oraz drzwiami przesuwnymi, które najlepiej sprawdzą się w małym wnętrzu.


image
Więcej realizacji tego samego projektanta
Dorotaw
dodano 17.02.2025
Metamorfoza obejmująca pomieszczenie, które pełni funkcję kuchni. Kuchnia zyskała sporo nowej przestrzeni do przechowywania, dzięki funkcjonalnym blatom oraz szafkom.
Ewson
dodano 09.11.2024
Pomieszczenie to połączenie stylu nowoczesnego z akcentami elegancji. Taki akcent stanowi między innymi łóżko FABRIZZO SQUERE P, które dzięki pikowanemu zagłówkowi, jest wygodne oraz subtelne. Ryflowane szafki nocne TOMIE w ciemnym kolorze, dodają stylowego charakteru. Sypialnia zachowana w jasnych barwach, dzięki czemu jest świeża i przejrzysta dla oka.
Krzemi
dodano 31.10.2024
Elegancka sypialnia, która stanowi połączenie komfortowego miejsca wypoczynku oraz przestrzeni do pracy. Modne łóżko CELINE z wygodnym, pikowanym zagłówkiem stanowi centralny element sypialni. Pojemna szafa BASTIA, z dużym lustrem, to pojemny mebel, który pomieści wiele dużą część garderoby.
Grzegorz
dodano 25.10.2024
Pokój dla 13-latki w minimalistycznym stylu, zachowany w jasnych barwach. Meble z kolekcji FEMII w kolorze białym alpejskim, sprawią, że wnętrze zyskuje lekkości i świeżości.
Realizacje z kategorii #sypialnia
Ewson
dodano 09.11.2024
Pomieszczenie to połączenie stylu nowoczesnego z akcentami elegancji. Taki akcent stanowi między innymi łóżko FABRIZZO SQUERE P, które dzięki pikowanemu zagłówkowi, jest wygodne oraz subtelne. Ryflowane szafki nocne TOMIE w ciemnym kolorze, dodają stylowego charakteru. Sypialnia zachowana w jasnych barwach, dzięki czemu jest świeża i przejrzysta dla oka.
Krzemi
dodano 31.10.2024
Elegancka sypialnia, która stanowi połączenie komfortowego miejsca wypoczynku oraz przestrzeni do pracy. Modne łóżko CELINE z wygodnym, pikowanym zagłówkiem stanowi centralny element sypialni. Pojemna szafa BASTIA, z dużym lustrem, to pojemny mebel, który pomieści wiele dużą część garderoby.
Justyna
dodano 07.07.2024
Wnętrze dla dwóch dorosłych kobiet, które pełni rolę zarówno przytulnego pokoju dziennego, jak i funkcjonalnego kącika biurowego.
Sgh14
dodano 29.06.2024
Delikatny styl boho to swoboda aranżacji, kreatywne detale oraz ciepłe kolory. W tej sypialni akcenty zieleni tworzą zgraną całość, zanurz się w przytulnym wnętrzu.
Inne realizacje
Dorotaw
dodano 17.02.2025
Metamorfoza obejmująca pomieszczenie, które pełni funkcję kuchni. Kuchnia zyskała sporo nowej przestrzeni do przechowywania, dzięki funkcjonalnym blatom oraz szafkom.
Ewson
dodano 09.11.2024
Pomieszczenie to połączenie stylu nowoczesnego z akcentami elegancji. Taki akcent stanowi między innymi łóżko FABRIZZO SQUERE P, które dzięki pikowanemu zagłówkowi, jest wygodne oraz subtelne. Ryflowane szafki nocne TOMIE w ciemnym kolorze, dodają stylowego charakteru. Sypialnia zachowana w jasnych barwach, dzięki czemu jest świeża i przejrzysta dla oka.
Krzemi
dodano 31.10.2024
Elegancka sypialnia, która stanowi połączenie komfortowego miejsca wypoczynku oraz przestrzeni do pracy. Modne łóżko CELINE z wygodnym, pikowanym zagłówkiem stanowi centralny element sypialni. Pojemna szafa BASTIA, z dużym lustrem, to pojemny mebel, który pomieści wiele dużą część garderoby.
Grzegorz
dodano 25.10.2024
Pokój dla 13-latki w minimalistycznym stylu, zachowany w jasnych barwach. Meble z kolekcji FEMII w kolorze białym alpejskim, sprawią, że wnętrze zyskuje lekkości i świeżości.

W celu dostosowania strony do Twoich preferencji oraz zainteresowań przechowujemy na urządzeniu, z którego korzystasz (komputerze, telefonie itp.) tzw. „pliki cookies” i im podobne, z możliwością ich odczytu. Klikając „ Akceptuje” lub zamykając okno przy pomocy przycisku „X” wyrażasz zgodę na przetwarzanie Twoich danych. Pamiętaj, możesz w każdej chwili nie wyrazić zgody lub cofnąć zgodę na przetwarzanie Twoich danych osobowych.

Ponadto informujemy, że administratorem danych zawartych w tych plikach jest Agata S.A. Dane mogą być przetwarzane przez nas i naszych zaufanych partnerów w celach marketingowych, w szczególności poprzez wyświetlanie spersonalizowanych reklam, na podstawie naszego prawnie uzasadnionego interesu Więcej informacji na temat zasad przetwarzania danych osobowych, w tym o Twoich uprawnieniach, znajdziesz w naszej Polityce Prywatności.