No i ładnie No i ładnie

Klimatyczny salon w nowoczesnym stylu

image
Zaprojektowane przez:
Szymon Machaczka
Właściciel wnętrza
SylLac
image
tag
tag
tag
image2
image3
image4
image5
image1
image2
image3
image4
image5

Przesuń suwak i zobacz jak zmieniło się wnętrze

before after


Przed
image
image
image
Po
image
image
image

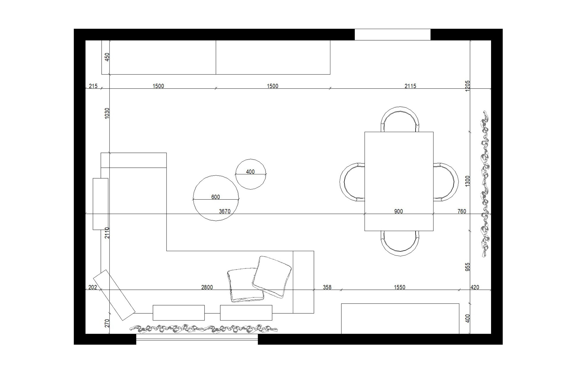
Właściciele salonu od miesięcy nie mieli pomysłu na jego ponowne urządzenie. Na wyposażeniu salonu posiadają już narożnik TOKYO oraz stół rozkładany MILA, ale nie wiedzieli co dalej zrobić z aranżacją salonu. Jak dobrać pozostałe meble i dodatki, tak aby powstało nowoczesne wnętrze oparte głównie na szarościach? Przychodzimy z pomocą!


- Spektakularna metamorfoza salonu to połączenie nieoczywistych dodatków, różnych tekstur oraz kolorów. Takim dodatkiem jest na przykład oświetlenie. Gra świateł stworzona z trzech różnych rodzajów lamp tworzy we wnętrzu niezwykły klimat. Lampa wisząca TRABO to designerska lampa wyposażona w kilka źródeł światła, a jej elementy wykonane są z drewna sosnowego, połączonego z metalową bazą. Dwie lampy z serii LOYA LED przyciągają uwagę prostym oraz nowoczesnym wzorem, jak i lampy RONDOO, które punktowym światłem doskonale wkomponowały się w całość aranżacji – Szymon Machaczka, architekt wnętrz noiladnie.pl.

image
Więcej realizacji tego samego projektanta
Ela
Złote dodatki pojawiające się w wielu miejscach takich jak bateria zlewozmywakowa, okap czy gałki dodają wnętrzu luksusowego wyglądu, a duży okrągły stół z serii OSLO idealnie wpasowuje się we wnętrze. Ponadto w zestawieniu z welurowymi krzesłami ABADA, kącik jadalniany jest nie tylko funkcjonalny, ale i elegancki.
Sylwia323
Pokój dla 4-letniej dziewczynki o którym marzyła. Kuchnię zmieniliśmy w dziecięce królestwo z miejscem do nauki i malowania.
AnaBa
Aranżacja pomieszczenia, które spełnia kilka funkcji, w związku z tym niezbędnym było, aby znalazła się w nim wygodna kanapa. W pomieszczeniu należało także ująć szafki, które pozwolą uporządkować przestrzeń oraz kącik ze stołem i krzesłami, idealny do wspólnych posiłków, jak i pracy. Całość zaprezentowana w jasnych odcieniach, dzięki czemu pokój zyskał optycznie więcej miejsca.
Honorata
Metamorfoza pomieszczenia obejmuje przemianę pokoju dziewczynki, idącej do pierwszej klasy. Jej potrzeby obejmowały wobec tego dołożenie biurka, dużej szafy oraz regału na książki. Pokój zyskał na przestrzeni, a przy tym stał się przytulny i funkcjonalny.
Realizacje z kategorii #salon
Anastazja
Kompleksowa przemiana pokoju dziennego, który stanowi połączenie salonu i jadalni. Niegdyś mało doświetlone pomieszczenie, stanowi teraz funkcjonalną oraz komfortową strefę. Krzesła welurowe LIANA dodają przestrzeni szykownego charakteru, a wygodna 3-osobowa sofa GENF, oferuje dodatkowe miejsce do siedzenia.
halinam
Metamorfoza pokoju starszych osób. Ważny element pomieszczenia stanowi wygodna kanapa, która umożliwi komfortowy wypoczynek oraz przyjmowanie gości. Meble z kolekcji SAINT TROPEZ, z jasnymi, błyszczącymi frontami, dodają nowoczesności oraz rozświetlają przestrzeń.
AleksandraPl
Pokój dla dwóch licealistek. Na ścianach znalazły się dekoracyjne panele, które idealnie dostrajają wnętrze. Przestrzeń została wyposażona w niezbędne wyposażenie, które zapewni komfort i wygodę nastolatkom.
Justi
Salon wraz z miejscem na jadalnie, jest centralnym punktem dla całego domu, a zatem musi dawać poczucie miejsca, w którym spędzanie czasu to czysta przyjemność! Aranżacja pomieszczenia, zachowana w jasnych barwach, z drewnianymi elementami to przytulna przystań do relaksu czy spotkań z najbliższymi.
Inne realizacje
Dorotaw
Metamorfoza obejmująca pomieszczenie, które pełni funkcję kuchni. Kuchnia zyskała sporo nowej przestrzeni do przechowywania, dzięki funkcjonalnym blatom oraz szafkom.
Ewson
Pomieszczenie to połączenie stylu nowoczesnego z akcentami elegancji. Taki akcent stanowi między innymi łóżko FABRIZZO SQUERE P, które dzięki pikowanemu zagłówkowi, jest wygodne oraz subtelne. Ryflowane szafki nocne TOMIE w ciemnym kolorze, dodają stylowego charakteru. Sypialnia zachowana w jasnych barwach, dzięki czemu jest świeża i przejrzysta dla oka.
Krzemi
Elegancka sypialnia, która stanowi połączenie komfortowego miejsca wypoczynku oraz przestrzeni do pracy. Modne łóżko CELINE z wygodnym, pikowanym zagłówkiem stanowi centralny element sypialni. Pojemna szafa BASTIA, z dużym lustrem, to pojemny mebel, który pomieści wiele dużą część garderoby.
Grzegorz
Pokój dla 13-latki w minimalistycznym stylu, zachowany w jasnych barwach. Meble z kolekcji FEMII w kolorze białym alpejskim, sprawią, że wnętrze zyskuje lekkości i świeżości.

W celu dostosowania strony do Twoich preferencji oraz zainteresowań przechowujemy na urządzeniu, z którego korzystasz (komputerze, telefonie itp.) tzw. „pliki cookies” i im podobne, z możliwością ich odczytu. Klikając „ Akceptuje” lub zamykając okno przy pomocy przycisku „X” wyrażasz zgodę na przetwarzanie Twoich danych. Pamiętaj, możesz w każdej chwili nie wyrazić zgody lub cofnąć zgodę na przetwarzanie Twoich danych osobowych.

Ponadto informujemy, że administratorem danych zawartych w tych plikach jest Agata S.A. Dane mogą być przetwarzane przez nas i naszych zaufanych partnerów w celach marketingowych, w szczególności poprzez wyświetlanie spersonalizowanych reklam, na podstawie naszego prawnie uzasadnionego interesu Więcej informacji na temat zasad przetwarzania danych osobowych, w tym o Twoich uprawnieniach, znajdziesz w naszej Polityce Prywatności.