No i ładnie No i ładnie

Kuchnia z dodatkiem marmuru i złota

image
Zaprojektowane przez:
Karolina Kubica
Właściciel wnętrza
Agnes
dodano: 10.11.2021
image
tag
tag
tag
tag
tag
tag
tag
tag
tag
tag
image2
image3
image4
image1
image2
image3
image4

Przesuń suwak i zobacz jak zmieniło się wnętrze

before after


Przed
image
image
Po
image
image

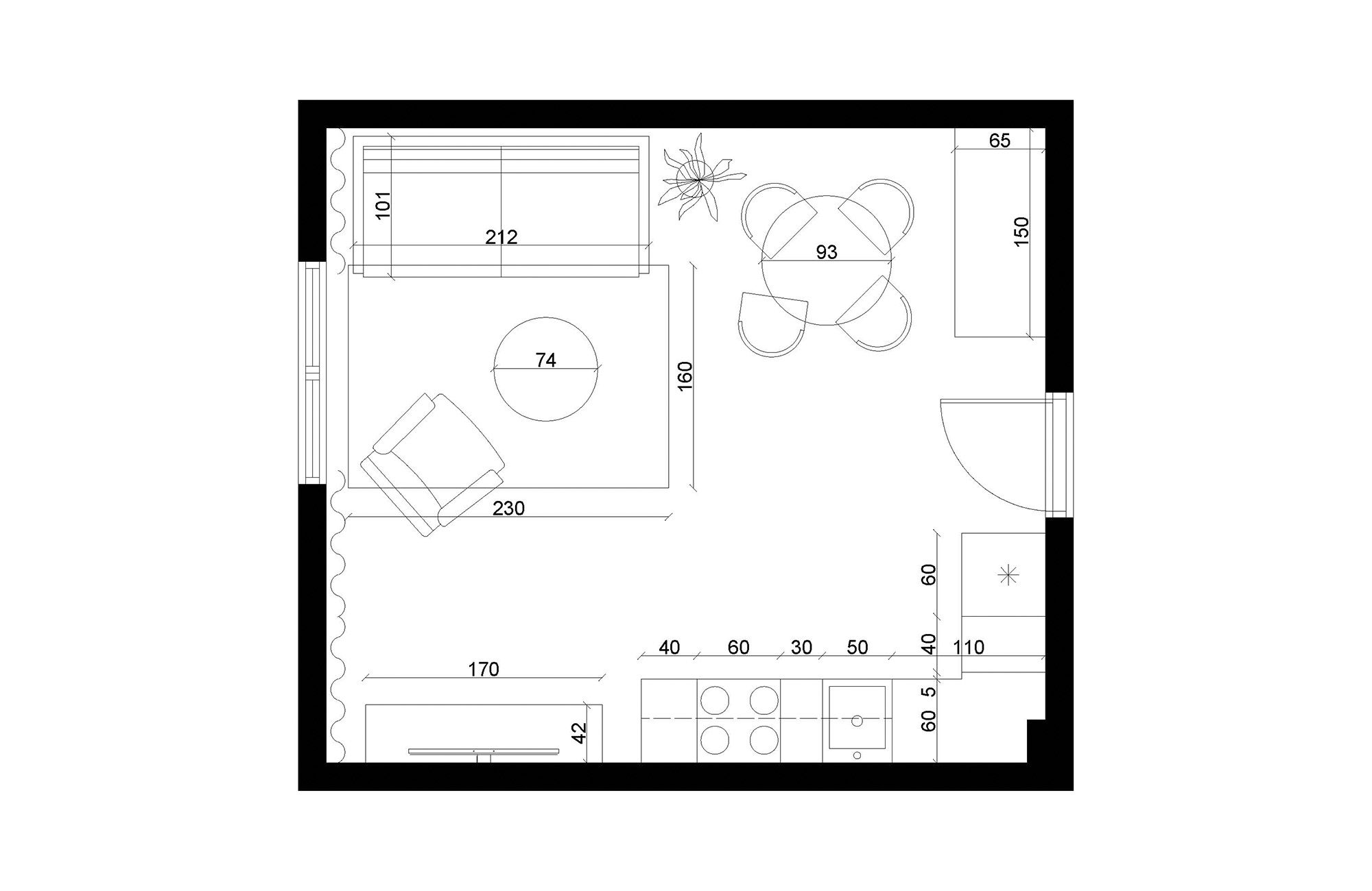
W tej metamorfozie spełniliśmy marzenie właścicielki o białej kuchni z dodatkiem marmuru oraz złota. Pozostała cześć strefy dziennej czyli salon z jadalnią zaprojektowane zostały w podobnej kolorystyce. We wnętrzu znalazło się miejsce na dużą, pojemną szafę BASTIA z frontem wykończonym lustrem, który optycznie powiększy nam pomieszczenie. Szczególną uwagę przykuwa złota, ozdobna lampa URCHN zwieszona nad rozkładanym stołem. Część wypoczynkowa to sofa oraz wygodny fotel w ciepłych kolorach. Delikatne odcienie złota pojawiają się na poduszkach czy dodatkach sprawiając, że całe wnętrze jest spójne.


image
Więcej realizacji tego samego projektanta
Dorotaw
dodano 17.02.2025
Metamorfoza obejmująca pomieszczenie, które pełni funkcję kuchni. Kuchnia zyskała sporo nowej przestrzeni do przechowywania, dzięki funkcjonalnym blatom oraz szafkom.
Ewson
dodano 09.11.2024
Pomieszczenie to połączenie stylu nowoczesnego z akcentami elegancji. Taki akcent stanowi między innymi łóżko FABRIZZO SQUERE P, które dzięki pikowanemu zagłówkowi, jest wygodne oraz subtelne. Ryflowane szafki nocne TOMIE w ciemnym kolorze, dodają stylowego charakteru. Sypialnia zachowana w jasnych barwach, dzięki czemu jest świeża i przejrzysta dla oka.
Krzemi
dodano 31.10.2024
Elegancka sypialnia, która stanowi połączenie komfortowego miejsca wypoczynku oraz przestrzeni do pracy. Modne łóżko CELINE z wygodnym, pikowanym zagłówkiem stanowi centralny element sypialni. Pojemna szafa BASTIA, z dużym lustrem, to pojemny mebel, który pomieści wiele dużą część garderoby.
Grzegorz
dodano 25.10.2024
Pokój dla 13-latki w minimalistycznym stylu, zachowany w jasnych barwach. Meble z kolekcji FEMII w kolorze białym alpejskim, sprawią, że wnętrze zyskuje lekkości i świeżości.
Realizacje z kategorii #salon
Anastazja
dodano 25.09.2024
Kompleksowa przemiana pokoju dziennego, który stanowi połączenie salonu i jadalni. Niegdyś mało doświetlone pomieszczenie, stanowi teraz funkcjonalną oraz komfortową strefę. Krzesła welurowe LIANA dodają przestrzeni szykownego charakteru, a wygodna 3-osobowa sofa GENF, oferuje dodatkowe miejsce do siedzenia.
halinam
dodano 21.09.2024
Metamorfoza pokoju starszych osób. Ważny element pomieszczenia stanowi wygodna kanapa, która umożliwi komfortowy wypoczynek oraz przyjmowanie gości. Meble z kolekcji SAINT TROPEZ, z jasnymi, błyszczącymi frontami, dodają nowoczesności oraz rozświetlają przestrzeń.
AleksandraPl
dodano 21.08.2024
Pokój dla dwóch licealistek. Na ścianach znalazły się dekoracyjne panele, które idealnie dostrajają wnętrze. Przestrzeń została wyposażona w niezbędne wyposażenie, które zapewni komfort i wygodę nastolatkom.
Justi
dodano 31.07.2024
Salon wraz z miejscem na jadalnie, jest centralnym punktem dla całego domu, a zatem musi dawać poczucie miejsca, w którym spędzanie czasu to czysta przyjemność! Aranżacja pomieszczenia, zachowana w jasnych barwach, z drewnianymi elementami to przytulna przystań do relaksu czy spotkań z najbliższymi.
Inne realizacje
Dorotaw
dodano 17.02.2025
Metamorfoza obejmująca pomieszczenie, które pełni funkcję kuchni. Kuchnia zyskała sporo nowej przestrzeni do przechowywania, dzięki funkcjonalnym blatom oraz szafkom.
Ewson
dodano 09.11.2024
Pomieszczenie to połączenie stylu nowoczesnego z akcentami elegancji. Taki akcent stanowi między innymi łóżko FABRIZZO SQUERE P, które dzięki pikowanemu zagłówkowi, jest wygodne oraz subtelne. Ryflowane szafki nocne TOMIE w ciemnym kolorze, dodają stylowego charakteru. Sypialnia zachowana w jasnych barwach, dzięki czemu jest świeża i przejrzysta dla oka.
Krzemi
dodano 31.10.2024
Elegancka sypialnia, która stanowi połączenie komfortowego miejsca wypoczynku oraz przestrzeni do pracy. Modne łóżko CELINE z wygodnym, pikowanym zagłówkiem stanowi centralny element sypialni. Pojemna szafa BASTIA, z dużym lustrem, to pojemny mebel, który pomieści wiele dużą część garderoby.
Grzegorz
dodano 25.10.2024
Pokój dla 13-latki w minimalistycznym stylu, zachowany w jasnych barwach. Meble z kolekcji FEMII w kolorze białym alpejskim, sprawią, że wnętrze zyskuje lekkości i świeżości.

W celu dostosowania strony do Twoich preferencji oraz zainteresowań przechowujemy na urządzeniu, z którego korzystasz (komputerze, telefonie itp.) tzw. „pliki cookies” i im podobne, z możliwością ich odczytu. Klikając „ Akceptuje” lub zamykając okno przy pomocy przycisku „X” wyrażasz zgodę na przetwarzanie Twoich danych. Pamiętaj, możesz w każdej chwili nie wyrazić zgody lub cofnąć zgodę na przetwarzanie Twoich danych osobowych.

Ponadto informujemy, że administratorem danych zawartych w tych plikach jest Agata S.A. Dane mogą być przetwarzane przez nas i naszych zaufanych partnerów w celach marketingowych, w szczególności poprzez wyświetlanie spersonalizowanych reklam, na podstawie naszego prawnie uzasadnionego interesu Więcej informacji na temat zasad przetwarzania danych osobowych, w tym o Twoich uprawnieniach, znajdziesz w naszej Polityce Prywatności.